Modular Shape Drawings
-
112.11 5in Bullet
-
112.11 5in Dogleg
-
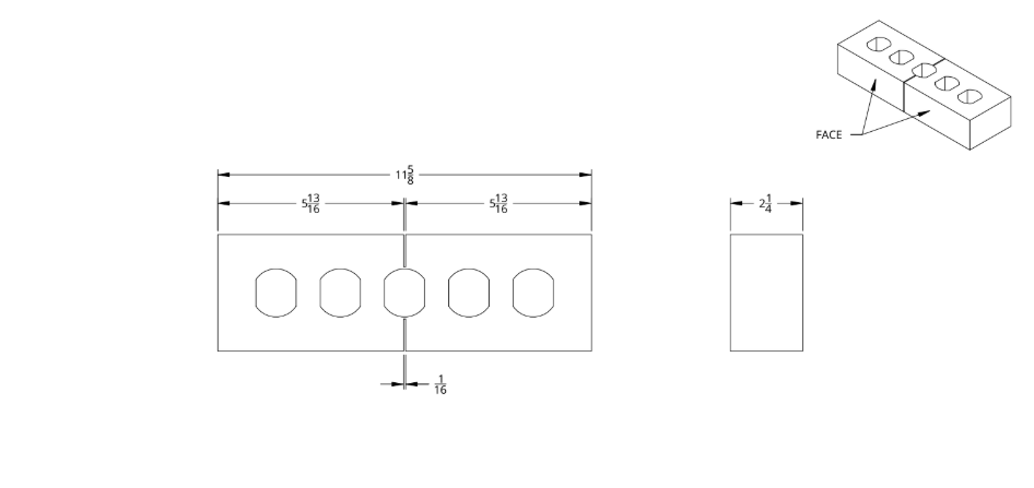
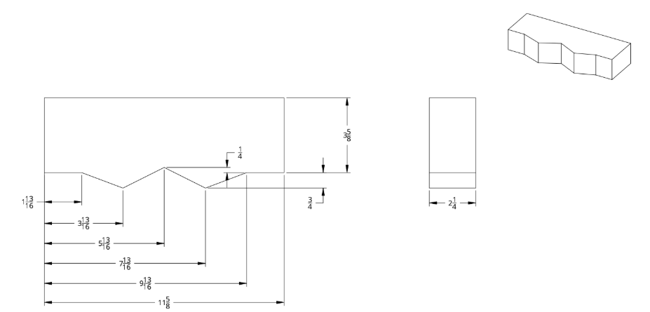
112.11 Modular Dogleg 1
-
141.55 Mod Ext
-
157.89 Mod Ext
-
Half Modular Sloped Sill
-
Kerfed Modular Bullnose
-
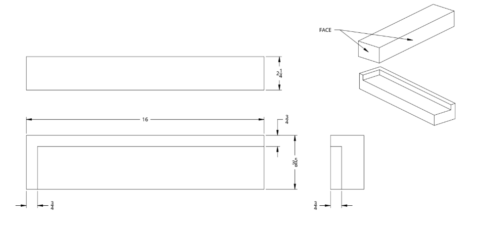
Kerfed Modular Sill Stretcher
-
Lipped Rowlock
-
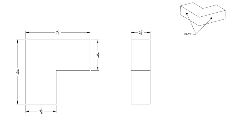
Modular 82.89° Corner
-
Modular 97.09° Corner
-
Modular 103.97° Corner
-
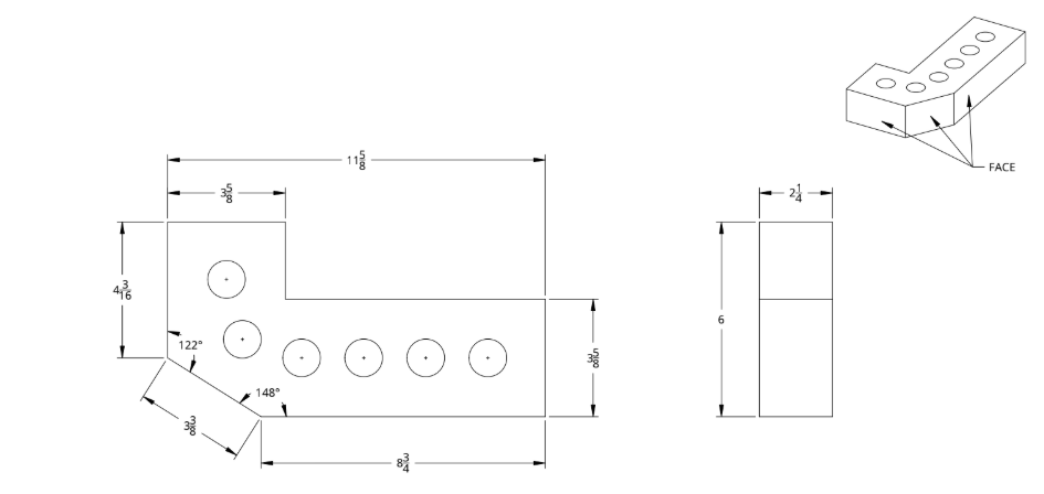
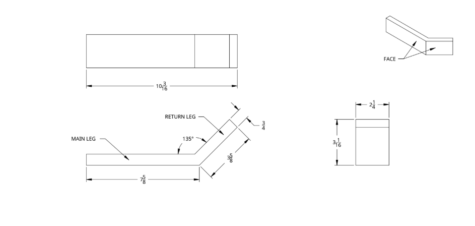
Modular 125° Dogleg
-
Modular 128° Ext Corner 6.5in
-
Modular 130° Lip Corner
-
Modular 151° Ext Dogleg
-
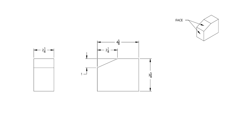
Modular Beveled Shape
-
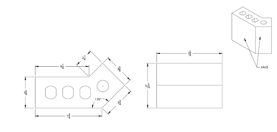
Modular Corner Unit
-
Modular False Joint Projected
-
Sawtooth Modular
-
Sawtooth Modular 2
-
Modular Special Parallelogram Brick
-
Rowlock + False Joint
-
Triple Mod Unit
Norman Shape Drawings
-
Kerfed Norman
-
12 Inch Radial Starter
-
12inch Radial
-
12x6 Dogleg 90°
-
112.11 Ext 9 5/8 Bullet
-
Norman Sloped
-
Norman Lip Stretcher
-
Norman Lip Corner Right
-
Norman Lip Corner Left
-
Norman False Joint Projected
-
Norman Drip Sill Shape
-
Norman Chamfered Corner
-
Norman Bullnose
-
Norman Beveled Shape
-
Norman 83° Ext. Corner
-
Norman 1ft Radius
Specialty Shape Drawings
-
6x6 Dogleg 90°
-
8x8 135° Ext.
-
8x8 135° return
-
8x8 Arched
-
8x12 Beveled
-
75° Thin Modular Corner
-
135° Thin Modular
-
135° Thin Norman
-
Ambassador Lip Corner
-
Ambassador Radial
-
Corbel
-
Double Pyramid
-
Roman Lip Stretcher
-
Solid Sill Shape 112.11
-
Special Return
-
Special Thin Brick Corners
-
Stair Tread Corner
-
Thin Brick Internal/External corners
Utility Shape Drawings
-
Utility Closure Lip Stretcher
-
Utility Lip Stretcher
-
Utility Lip Corner
-
Utility 62° Corner
-
Utility 130° Corner
-
Utility 135° Internal Corner